0413 487 080
Kaarsenmaker 64, 5091 GS Middelbeers
[email protected]

Antoniusstraat 17

Antoniusstraat 17, 5091 BA Oost-, West- en Middelbeers, Nederland

Details

ONDER BOD.
Op zoek naar een sfeervolle twee-onder-een-kapwoning met volop ruimte en mogelijkheden? Deze charmante woning heeft een ruime oprit, garage, schuur, meerdere overkappingen en een fijne, privacy biedende achtertuin. Gelegen op een hoekperceel in het gezellige Oostelbeers, omringd door prachtige natuur.

BEGANE GROND

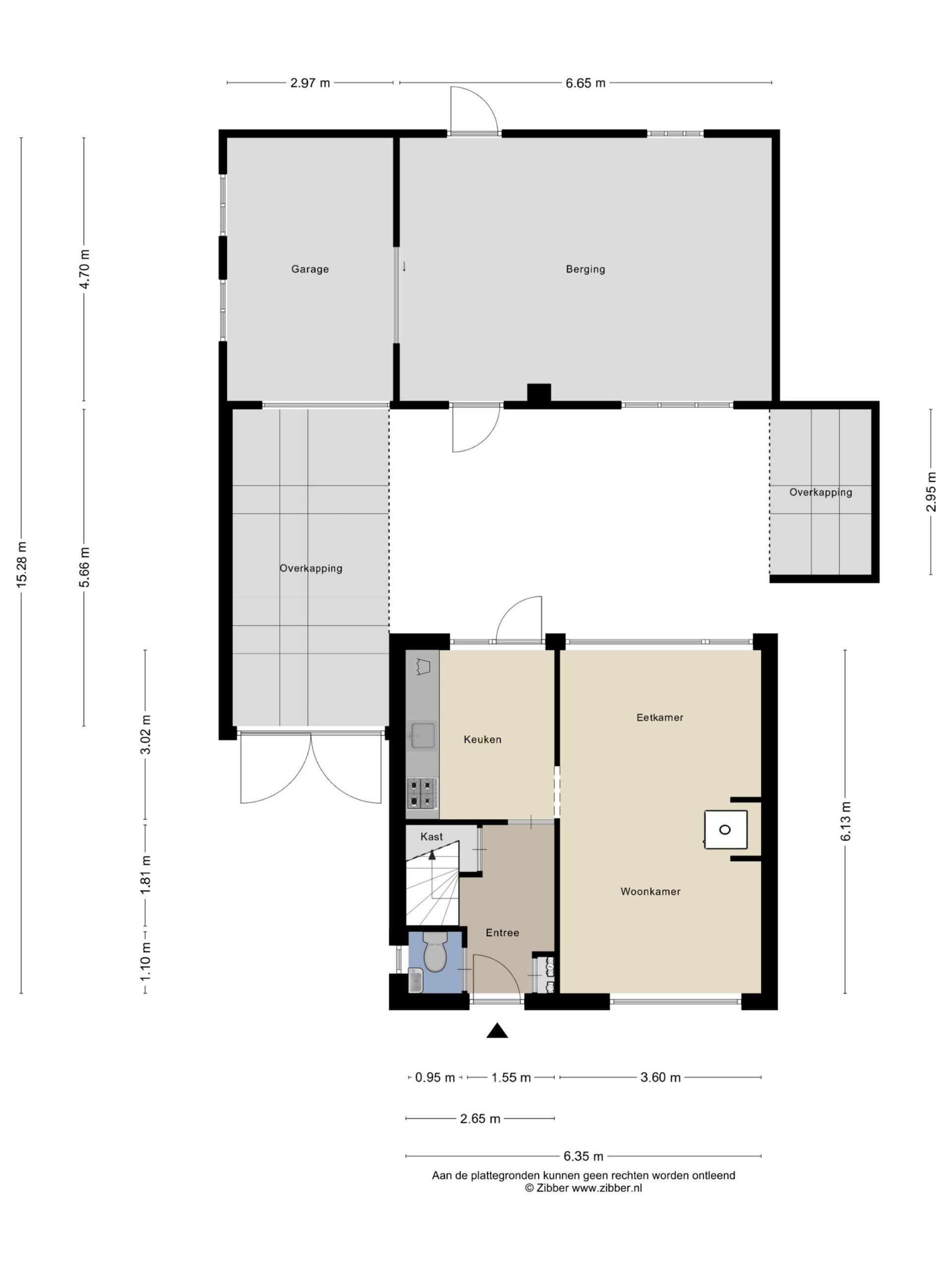
ENTREE/HAL
Via de entree komt u in de hal met tegelvloer, meterkast (4 groepen, 2 aardlekschakelaars) en trapopgang. De deels betegelde toiletruimte beschikt over een staand closet en fonteintje. Onder de trap vindt u een praktische, verdiepte voorraadkast. Vanuit de hal heeft u toegang tot de keuken.

KEUKEN
De keuken (2001) is uitgevoerd in wandopstelling en voorzien van een hardstenen werkblad, 4-pits gaskookplaat, afzuigkap en koelkast. Naast de deur naar de achtertuin bevindt zich de wasmachineaansluiting.

WOONKAMER
Een lichte, sfeervolle woonkamer met tegelvloer (vernieuwd in 2001), spachtelputz wanden, sierstrips en een sierbalkenplafond. De fraaie schouw biedt de mogelijkheid voor het plaatsen van een (hout)kachel.

EERSTE VERDIEPING

OVERLOOP
Vanuit de overloop met vaste inbouwkast zijn 3 slaapkamers en de badkamer bereikbaar.

SLAAPKAMERS
Ouderslaapkamer: aan de achterzijde, met vaste kast, vinyl vloer, behangen wanden en schroten plafond.
Slaapkamer 2 en 3: beide voorzien van vinyl vloer, behangen wanden en schroten plafond.

BADKAMER
Moderne, volledig betegelde badkamer (2020) met inloopdouche, wastafelmeubel, wandcloset en designradiator.

TWEEDE VERDIEPING
Via een vlizotrap bereikt u de ruime bergzolder met dakraam en CV-opstelling (Nefit HR combiketel, 2002). Er is de mogelijkheid om hier een vaste trap te plaatsen en extra woonruimte te creëren.
TUIN
De voortuin (aangelegd in 2020) is onderhoudsvriendelijk en voorzien van plantenbakken. De ruime oprit biedt plaats voor meerdere auto’s.
De achtertuin is grotendeels bestraat en heeft twee overkappingen. De garage beschikt over een kanteldeur en elektra en is nu bereikbaar via de oprit, maar kan ook eenvoudig toegankelijk worden gemaakt vanuit achterzijde van het perceel. Daarnaast is er een ruime schuur met elektra en een houtopslag achter de garage.

ALGEMEEN:
– Privacy biedende achtertuin op het noordoosten
– Grotendeels aluminium kozijnen
– Isolerende beglazing op de begane grond
– Mogelijkheid tot vergroten achtertuin (schuur verwijderen)
– Uitbreidingsopties aan opritzijde
– Goede uitvalswegen (A2 en A58) naar Eindhoven, Tilburg en Den Bosch
– Aan prachtige natuur geen gebrek. In de omgeving wisselen in alle richtingen landbouwgebieden af met uitgestrekte
bossen en beekdalen. Ten westen van Oostelbeers stroomt de Kleine Beerze, die voor een deel bestaat uit een omleidingskanaal en voor een deel uit het oorspronkelijke dal met de meanderende rivier. Langs de rivier liggen een wat kleine bosjes, waardoorheen men kan wandelen. Op zo’n 4 km naar het zuidwesten ligt de Landschotse heide, een uitgestrekt heidegebied met een aantal grote vennen. Ten oosten van Oostelbeers strekt de Oostelbeerse Heide zich uit, een gebied van naaldbos en heide met enkele vennen. Ten noorden ligt het landgoed Baest, een berken-zomereikenbos dat ook cultuurhistorsch van belang is.
– Benieuwd naar deze woning? Maak snel een afspraak om dit unieke plekje te komen bekijken.

Plattegrond

176327215_1572701_anton_begane_grond_first_design_20250902_1a1191.jpg

176327215_1572701_anton_eerste_verdiepi_first_design_20250902_59f886.jpg

176327215_1572701_anton_zolder_first_design_20250902_3242aa.jpg